配资专业炒股配资门户-杠杆交易所-【东方资本】,配资平台怎么样可靠吗,财经新闻最新消息播报,股票配资合算吗

爬架關鍵技術解讀!高空作業猶如室內!

作者:anke001 日期:2021-02-07

隨著城市高層建筑的逐漸增多,施工中對外架工程的安全、經濟、實用、美觀要求也越來越受到關注,附著式升降腳手架俗稱爬架,因其構造簡單、操作方便、經濟實用等特點受到施工單位的廣泛歡迎,已成為高層建筑外架施工的首選工具。


1.jpg


01
爬架關鍵技術簡介
圖片


(1)爬架構件介紹


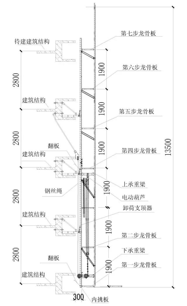
主要組成構件含上下承重梁、豎龍骨、導軌、轉角立柱、附墻支座、提升掛座、電動葫蘆、防護網片、鋼板沖孔網、花紋龍骨板、鋼板網龍骨板、剛性支座、智能控制系統配件、斜弦桿、翻板、內挑板、機位防墜器等,詳見:圖1~3

爬架構件介紹大樣圖.jpg

▲圖1 爬架構件介紹大樣圖

爬架立面示意圖.jpg

爬架立面效果圖.jpg

▲圖2 爬架立面示意圖 效果圖

爬架標準層側立面圖.jpg

▲圖3 爬架標準層側立面圖


(2)爬架工作原理

爬架工作原理.gif

將專門設計的升降機構固定(附著)在建筑物上,將腳手架同升降機構連接在一起,但可以相對運動,通過對固定于升降機構上的動力設備將腳手架提升或者下降,從而實現腳手架爬升或下降。


(3)爬架的組裝工藝流程


a?搭設爬架組裝前平臺→?b?鋪設龍骨板→?c?連接龍骨板→?d?安裝架體固定連接桿→e?豎龍骨的對接→?f?轉角立柱處防護網片的安裝→?g?導軌與龍骨板之間的連接→?h?導軌之間的連接→?i?防護網托扣的安裝→?j?防護網片與托扣之間的連接→?k?安裝附墻件以及卸荷支頂器→?l?安裝內挑板以及翻板→?m?安裝踢腳板→?n?水平拉結桿的連接→?o?電動葫蘆各構件安裝→?p?掛電動葫蘆→?q?上、下承重梁的安裝→?r?標準附墻支座的安裝→?s?水平附墻支座安裝→?t?斜拉桿的安裝→?u?豎向斜弦桿的安裝

爬架的組裝工藝流程.jpg

(4)爬架的關鍵技術要點


?根據《建筑施工工具式腳手架安全技術規范》JGJ202-2010強制條文規定:

①?架體高度不得大于5倍樓層高

② 架體寬度不得大于1.2m

③?直線布置的架體支承跨度不得大于7m,折線或曲線布置的架體,相鄰兩主框架支撐點處的架體外側距離不得大于5.4m

④ 架體的水平懸挑長度不得大于2m,且不得大于跨度的1/2

⑤ 架體全高與支撐跨度的乘積不得大于110㎡



02
爬架提升注意事項
圖片


(1)爬架提升之前

①?提升之前清掃干凈架體內垃圾,打開所有翻板

②?提升時架體上不允許任何人員逗留,操作人員可在樓層內操作,嚴禁在架體上走動

③ 爬架提升之前,必須檢查卸荷裝置、防墜裝置、防傾裝置處于工作狀態

④?打開塔吊附著處的活動龍骨板和防護網片

⑤?提升之前,翻板全部處于打開狀態


(2)爬架提升之后

① 架體提升到位后用支頂器卸荷,每個機位至少安裝兩層卸荷支頂器

② 電動葫蘆及時松鉤,不能使電動葫蘆長時間承載

③ 提升之后,翻板全部處于關閉狀態


爬架在施工過程中常見的安全隱患是高空墜落,因此在架體的底部必須設置密閉的走道板并在距墻內側設置翻板。



素材來源于筑龍施工,侵刪